Co-Living Co-Learning
Campus Complex For Tongji University

Residential Design and Urban Design Coursework
Institute: Tongji University
Time: Nov.2018 - Jan. 2019
Author: Jiaqi Wang
Project location: Shanghai, China

CONCEPT

An All-In-One Complex

This project proposes the creation of a novel campus building at Tongji University that integrates residential and educational functions. On the lower level of the buildings, not only daily lecturing and dining can be arranged inside the buildings, but also equipped with multiple rooms to cater to the special needs of different departments. Moreover, the upper part of the building is designed for both students and faculty members of tenants of varying ages. By bringing together individuals from diverse backgrounds, the building seeks to foster a vibrant and stimulating atmosphere where they can seamlessly interact and collaborate, fostering the exploration of innovative ideas.

Vertical Campus: Co-learning Space

Perspective Plan for Co-learning Space

Perspective Section for Co-learning Space

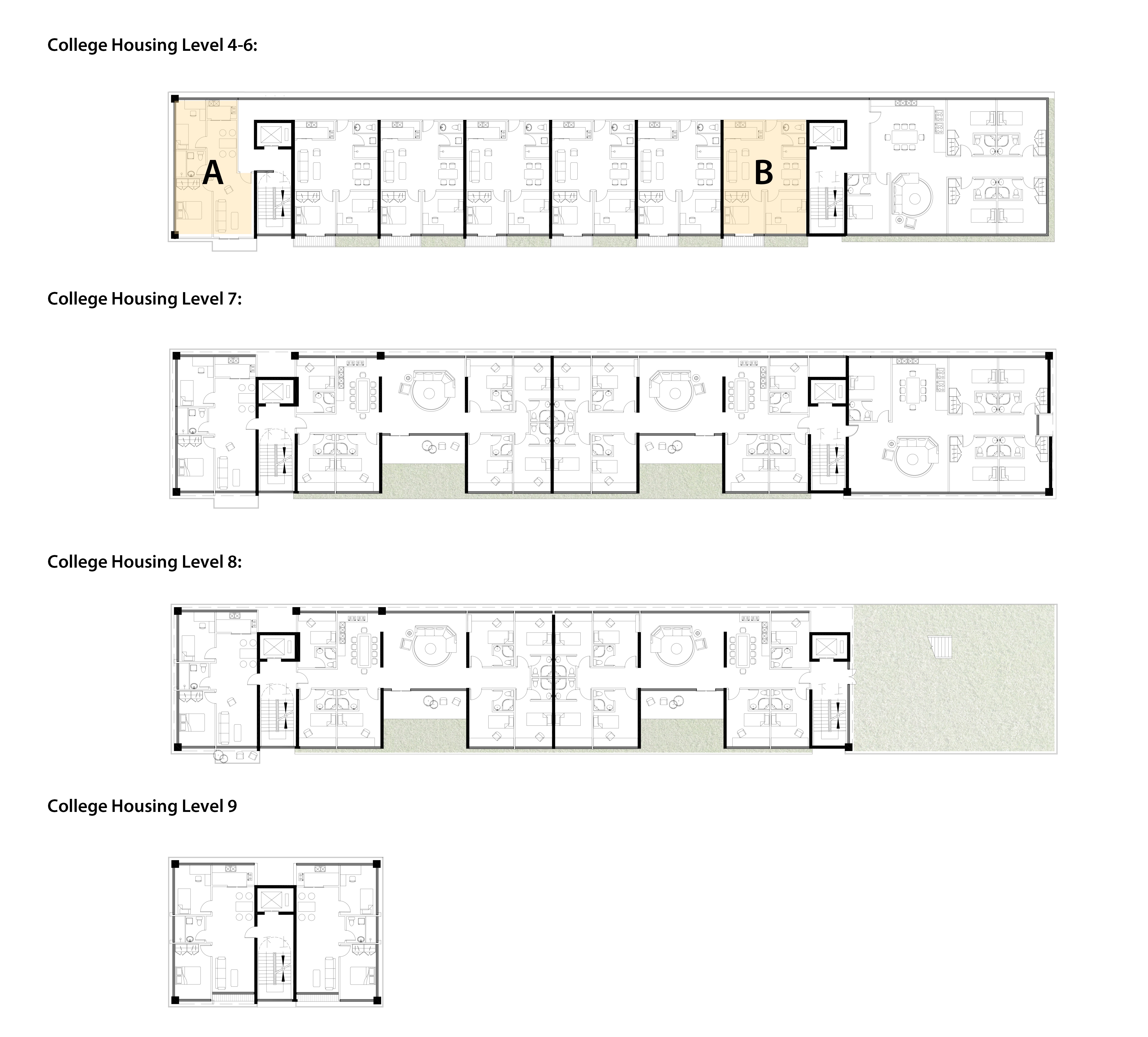
MIXED HOUSING: Co-living Space

Floor Plan

Housing Unit Plan

Housing Section Profile

RENDERING

Acknowledgement

All the visualisations above are created by Jiaqi Wang. My sincere gratitude to Professor Dr. Sha for providing valuable guidance throughout this coursework, in the areas of planning, urban design and residential design.

*****

Look forwards to getting in touch with you!



☕ Powered by github
based on Pudhina theme by Knhash 🛠️