Seeing Energy?
Energy Hub of TU Delft Campus


AR1U100 R and D Studio | Environmental Technology & Design Coursework
Institution: TU Delft
Time: Oct.2020 - Jan. 2021
Other Contributors: Lotte van Oevelen, Bjarne van der Drift and Florian Wilkesmann
Project location: Delft, the Netherlands

The Energy Hub project is part of the joint design work titled “Back to Back” for the “Designing Urban Environment” module at TU Delft.

CONCEPTUALISATION

Why Choosing Energy As The Topic of Our Team Project?

In the 21st Century, we are confronted with many unprecedented grand challenges, and one of the most pressing among them is the energy transition. Despite the critical need for sustainable energy solutions, many people still perceive energy as an abstract and elusive concept. Thus, in our joint design project, an energy-led urban regeneration approach is adopted to redefine the concept of energy in the built environment and inspire more people to take climate action.

Conceptual Framework and Strategies
How to Combine ‘Urban climate’ and ‘Densification’?

In our concept, we define energy systems into two categories: passive and active. The former is composed of natural elements that help us to mitigate the climate impact, such as solar energy for heating during winter, evaporation from water that autonomously cools down the environment, as well as open soils that help flora to flourish and provide shading and transpiration. In contrast, the latter focuses on the man-made energy system, which covers more active processes of producing and consuming energy. To optimize both aspects, a series of strategies are proposed, including interventions ranging from natural ventilation, compact buildings, green roofs, and biota corridors to renewable energy sources, and energy storage systems.

Meanwhile, what is more important is how to further synergize these “passive” and “active” energy systems and integrate it into our daily urban environment. That is where we proposed further interventions to affect people’s lifestyles as well as to promote innovation, education and cooperation programmes to accelerate the energy transition. Through such an effort, we hope the “back to back” TU Campus could perform as a catalyst that leverages a change for the future energy transition.

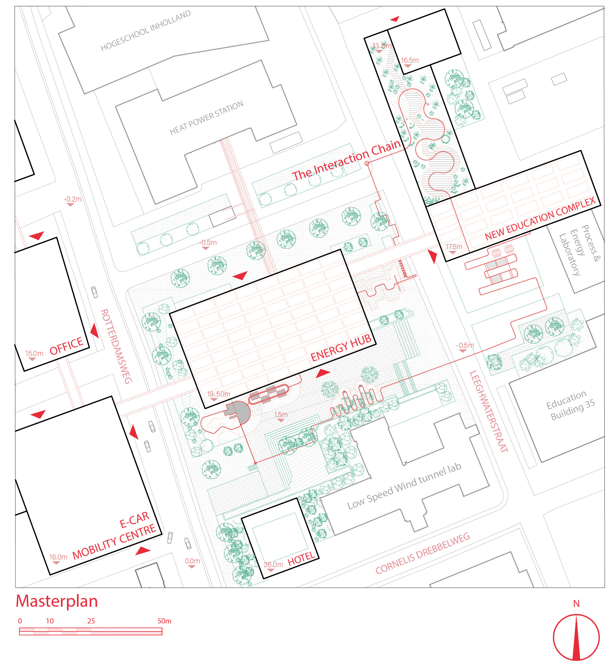
PILOT ZOOM-IN: THE ENERGY HUB

Strategies

Based on the joint design framework, the basic strategies for the energy hub area follows three steps: deciding the volumes, making space for two energy systems and designing the programmes.

Seeing Energy?A toolbox?

To go deeper of the concept of “seeing energy”, a toolbox was invented, which includes a range of interactive installations and facilities. These tools allow people to not only see energy, but also to feel it and engage with it in playful and innovative ways, enhancing their awareness and understanding of its critical role.

Plan

3D

Sections

Acknowledgement

The Energy Hub project is part of the joint design work titled “Back to Back” by the “Syenergy Urban Design” team. It is a coursework project for the “Designing Urban Environment” module, supervised by Dr Luca Iuorio and Dr Marjolein Pijpers-van Esch. The joint design team is composed of three TU Delft master’s students Lotte van Oevelen, Jiaqi Wang and Bjarne van der Drift, and the “Energy Hub” is one of the three pilot projects created by Jiaqi Wang individually based on the joint design framework. Also, before the design stage of the project, the site analysis and technical profile were documented in detail by the design team together with Florian Wilkesmann from the Department of Civil Engineering & Geosciences.

All the visualisations in the ‘PILOT ZOOM-IN: THE ENERGY HUB’ part is created by Jiaqi Wang.

*****

Look forwards to getting in touch with you!



☕ Powered by github
based on Pudhina theme by Knhash 🛠️